| Mis. | L RF |
L1 RFj |
L2 bw |
D | B | H Aperta |
W | Wt | |||||||
| IN | MM | IN | MM | IN | MM | IN | MM | IN | MM | IN | MM | MM | Kgs | ||
| 2 | 7.00 | 178 | 7.52 | 191 | 8.50 | 216 | 6.00 | 152.4 | 0.62 | 16 | 16.10 | 409 | 200 | 18 | |
| 2½ | 7.50 | 190 | 8.00 | 203 | 9.50 | 241 | 7.00 | 177.8 | 0.69 | 18 | 17.4 | 442 | 200 | 28 | |
| 3 | 8.00 | 203 | 8.50 | 216 | 11.1 | 283 | 7.50 | 190.5 | 0.75 | 19 | 20.00 | 508 | 250 | 34 | |
| 4 | 9.00 | 229 | 9.50 | 241 | 12.00 | 305 | 9.00 | 228.6 | 0.95 | 24 | 23.2 | 590 | 250 | 52 | |
| 5 | 10.0 | 254 | 10.5 | 267 | 15.0 | 381 | 10.0 | 254.0 | 0.94 | 24 | 27.9 | 710 | 250 | 71 | |
| 6 | 10.5 | 267 | 11.0 | 279 | 15.8 | 403 | 11.0 | 279.4 | 1.00 | 25 | 24.8 | 630 | 300 | 88 | |
| 8 | 11.5 | 292 | 12.0 | 305 | 16.5 | 419 | 13.5 | 342.9 | 1.12 | 28 | 37.8 | 960 | 350 | 144 | |
| 10 | 13.0 | 330 | 13.5 | 343 | 18.0 | 457 | 16.0 | 406.4 | 1.19 | 30 | 45.6 | 1158 | 400 | 197 | |
| 12 | 14.0 | 356 | 14.5 | 368 | 19.8 | 502 | 19.0 | 482.6 | 1.25 | 32 | 54.3 | 1378 | 450 | 298 | |
| 14 | 15.0 | 381 | 15.5 | 394 | 22.5 | 572 | 21.0 | 533.4 | 1.38 | 35 | 60.75 | 1543 | 500 | 406 | |
| 16 | 16.0 | 406 | 16.5 | 419 | 24.0 | 610 | 23.5 | 596.9 | 1.44 | 37 | 68.4 | 1738 | 600 | 524 | |
| 18 | 17.0 | 432 | 17.5 | 445 | 26.0 | 660 | 25.0 | 635.0 | 1.56 | 40 | 77.1 | 1959 | 600 | 720 | |
| 20 | 18.0 | 457 | 18.5 | 470 | 28.0 | 711 | 27.5 | 698.5 | 1.69 | 43 | 87.2 | 2214 | 680 | 1117 | |
| 24 | 20.0 | 508 | 20.5 | 521 | 32.0 | 813 | 32.0 | 812.8 | 1.88 | 48 | 102.3 | 2599 | 760 | 1466 | |
| 26* | 22.0 | 559 | 22.5 | 572 | 34.0 | 863 | 34.3 | 871.2 | 2.69 | 68 | 121.5 | 3086 | GO | 1699 | |
| 28* | 24.0 | 610 | 24.5 | 622 | 36.0 | 914 | 36.5 | 927.1 | 2.81 | 71 | 131.0 | 3327 | GO | 1931 | |
| 30* | 24.0 | 610 | 24.5 | 622 | 36.0 | 914 | 38.7 | 982.9 | 2.94 | 75 | 142.0 | 3606 | GO | 2380 | |
| 32* | 26.0 | 660 | 26.5 | 673 | 38.0 | 965 | 41.8 | 1062 | 3.18 | 81 | 146.0 | 3708 | GO | 2490 | |
| 36* | 28.0 | 711 | 28.5 | 724 | 40.0 | 1016 | 46.0 | 1168 | 3.56 | 90 | 154.5 | 3924 | GO | 3600 | |
| 42* | 32.0 | 813 | 32.5 | 826 | 45.0 | 1143 | 53.0 | 1346 | 3.81 | 97 | 179.0 | 4546 | GO | 4710 | |
| 48* | 42.0 | 1066 | 42.5 | 1079 | 54.0 | 1371 | 59.5 | 1511 | 4.25 | 108 | 204.0 | 5181 | GO | 6500 | |
| * RIDUTTORE A VOLANTINO | |||||||||||||||
| N° | NOME | SPECIFICHE ASTM | |||||
| A216 | A352 | A217 | A351 | ||||
| WCB | LCC | WC6 | C5 | CF8M | |||
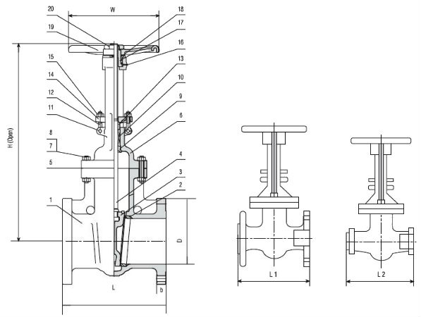
| 1 | CORPO | A216-WCB | A352-LCC | A217-WC6 | A217-C5 | A351-CF8M | |
| 2 | SEDE | A105,LF2, 316 OR 304 | |||||
| TRATTAMENTO TENUTA SEDE | 13CR, HF(STELLITE), 316, 304, Monel | ||||||
| 3 | CUNEO | A216-WCB | A352-LCC | A217-WC6 | A217-C5 | A351-CF8M | |
| TRATTAMENTO TENUTA CUNEO | 13CR, HF(STELLITE), 316, 304, Monel | ||||||
| 4 | STELO | 13CR, 316 OR 304, 17-4PH Monel | |||||
| 5 | GUARNIZIONE | SOFT IRON, SPIRAL WOUND | |||||
| 6 | CAPPELLO | A216-WCB | A352-LCC | A217-WC6 | A217-C5 | A351-CF8M | |
| 7 | DADO | A194-2H | A194-4 | A194-2H | A194-4 | A194-8 | |
| 8 | TIRANTE | A193-B7 | A320-L7 | A193-B7 | A193-B16 | A193-B8 | |
| 9 | BOCCOLA CAPELLO | 13Cr, 316 OR 304 | |||||
| 10 | ???? | Braided graphite & Die Formed Graphite Ring | |||||
| 11 | PERNO | Carbon Steel | |||||
| 12 | TIRANTE RIBALTABILE | A193-B7 | A320-L7 | A193- B7 A193-B8 | |||
| 13 | BOCCOLA PREMISTOPPA | 13Cr, 316 OR 304 | |||||
| 14 | FLANGETTA PREMISTOPPA | A216-WCB | A352-LCC | A217-WC6 | A217-C5 | A351-CF8M | |
| 15 | DADO | A194-2H | A194-4 | A194-2H | A194-8 | ||
| 16 | INGRASSATORE | Carbon Steel | |||||
| 17 | MADREVITE | ASTM A439 GR D2C | |||||
| 18 | GHIERA FERMA MADREVITE | Carbon Steel | |||||
| 19 | VOLANTINO | Malleable Iron | |||||
| 20 | DADO FERMA VOLANTINO | Carbon Steel | |||||