Principali caratteristiche
• Prodotta in Italia in accordo a EN 1171
• Scartamento secondo EN 558-1, serie 15
• Connessioni angiate secondo EN 1092-2 PN16 con gradino (non forate, PN10 o secondo altre speciche su richiesta)
• Asta uscente, chiusura in senso orario, tenuta secondaria sullo stelo regolabile tramite premistoppa
• Minima perdita di carico
• Testata idraulicamente secondo EN 12266-1: Test tipo P11-P12 Rate A
• Conforme alla Direttiva Attrezzature in Pressione PED 2014/68/UE art. 13 Fluidi di gruppo 2
• 100% passaggio totale
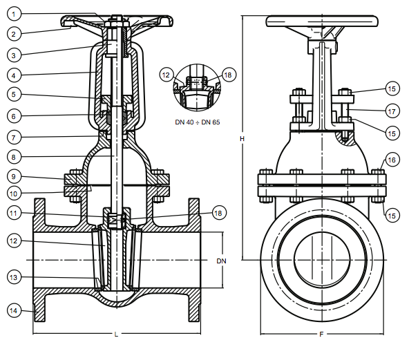
| DN | 40 | 50 | 65 | 80 | 100 | 125 | 150 | 200 | 250 | 300 |
|---|---|---|---|---|---|---|---|---|---|---|
| F | 150 | 165 | 185 | 200 | 220 | 250 | 285 | 340 | 405 | 460 |
| L | 240 | 250 | 270 | 280 | 300 | 325 | 350 | 400 | 450 | 500 |
| H | 265 | 275 | 335 | 380 | 435 | 495 | 585 | 710 | 830 | 965 |
| Volantino | 150 | 150 | 175 | 175 | 200 | 200 | 225 | 225 | 250 | 300 |
| Giri apertura/chiusura | 10 | 12,5 | 16 | 20 | 25 | 25 | 30 | 40 | 50 | 60 |
| Momento torcente in chiusura | 30 | 30 | 35 | 35 | 40 | 45 | 45 | 60 | 65 | 70 |
| Perdite di carico | 107 | 250 | 430 | 790 | 1250 | 1960 | 2790 | 2880 | 4306 | 6380 |
| Peso Kg | 13 | 16 | 20 | 28 | 35 | 47 | 60 | 95 | 140 | 195 |
| Componente | Materiale | |
|---|---|---|
| 1 | Controdado | CW614N Ottone trafilato |
| 2 | Volantino | EN-GJL-250 ghisa grigia |
| 3 | Madrevite | CB 754-S GM ottone fuso |
| 4 | Cavallotto | EN-GJL-250 ghisa grigia |
| 5 | Premistoppa | EN-GJL-250 ghisa grigia |
| 6 | Baderna | Ptfe |
| 7 | Guarnizione | Fasit 205 |
| 8 | Stelo | CW614N ottone trafilato |
| 9 | Cappello | EN-GJL-250 ghisa grigia |
| 10 | Guarnizione | Fasit 205 |
| 12 | Cuneo DN 40-DN 65 | CB 754-S GM ottone fuso |
| Cuneo DN 80-DN 300 | EN-GJL-250 ghisa grigia | |
| 13 | Sede | CB 754-S GM ottone fuso |
| 14 | Corpo | EN-GJL-250 ghisa grigia |
| 15 | Dadi | Acciaio Zincato 8.8 |
| 16 | Vite | Acciaio Zincato 8.8 |
| 17 | Tirante | Acciaio Zincato 8.8 |
| 18 | Spina | Acciaio |